Trilocale in vendita

Roseto Degli Abruzzi, Via Nazionale Adriatica - Cologna Spiaggia
€ 270.000
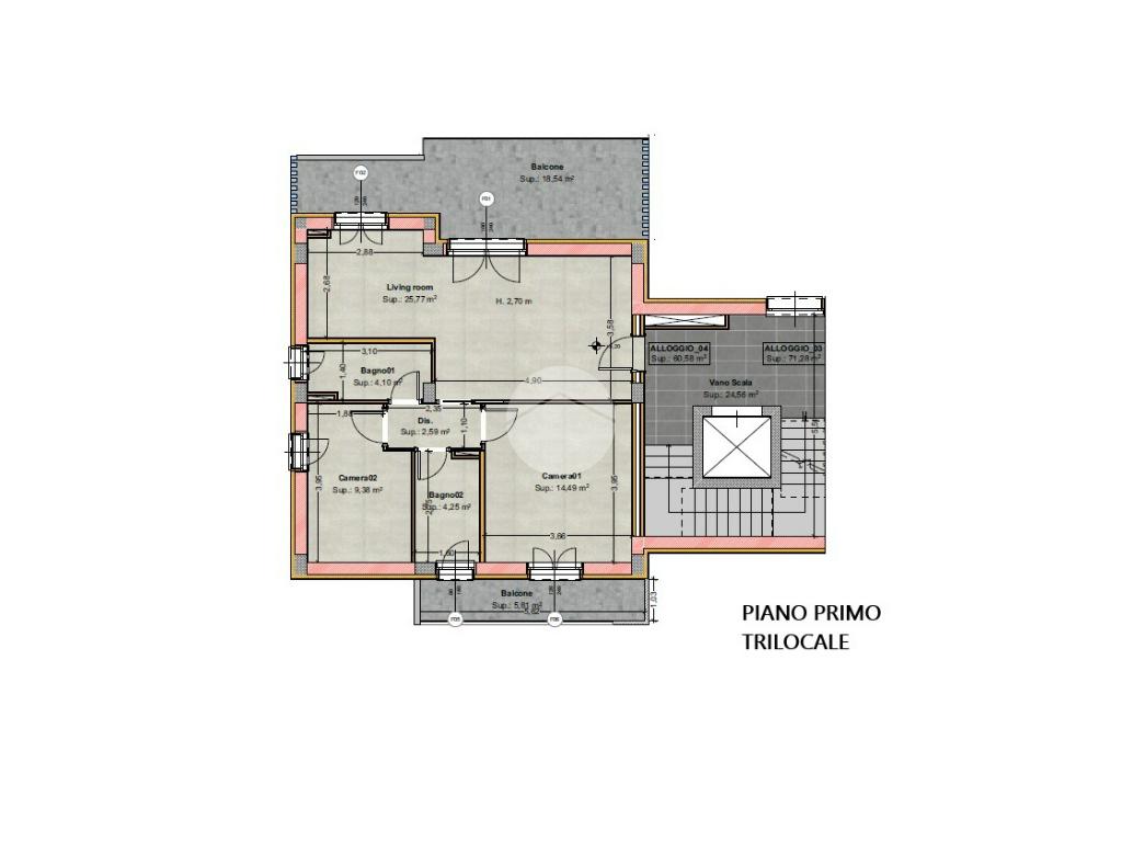
3 locali 3 locali
95 Mq 95 Mq
2 bagni 2 bagni

Trilocale in vendita

Roseto Degli Abruzzi, Via Nazionale Adriatica - Cologna Spiaggia

Descrizione annuncio

A Cologna Spiaggia, in via Nazionale Adriatica nasce un nuovo complesso residenziale.

La palazzina si sviluppa su tre piani fuori terra, con due appartamenti per livello, di tipologia trilocale e quadrilocale, progettati per offrire comfort, funzionalità e un’elevata qualità abitativa.

Ogni appartamento è libero su tre lati (est-nord-sud oppure ovest-nord-sud), garanzia di ottima esposizione solare e ambienti luminosi durante tutto l’arco della giornata.

Caratteristiche principali: appartamenti disponibili al primo e secondo piano con ampi spazi esterni abitabili (terrazzi o balconi); doppi servizi finestrati in ogni unità abitativa; cantina di proprietà per ogni appartamento; due posti auto esterni con colonnina di ricarica per auto elettriche.

La costruzione sarà realizzata con materiali e tecnologie di ultima generazione, per garantire alte prestazioni energetiche e un’eccellente abitabilità durante tutto l’anno.
Tra le dotazioni principali: riscaldamento a pavimento; impianto di climatizzazione; impianto fotovoltaico da 3 kW per ogni unità, per un notevole risparmio energetico e un impatto ambientale ridotto.

Consegna prevista 2027.

Situata in una zona residenziale tranquilla e ben servita, a pochi metri dal mare, raggiungibile comodamente a piedi o in bicicletta, questa nuova costruzione rappresenta la soluzione ideale per chi cerca la propria prima casa, una casa vacanze o un investimento di valore in una delle località balneari più amate dell’Abruzzo.

Contattaci subito per prenotare una visita al numero 085 201 7691 (Telefono e Whatsapp).

Siamo pronti ad accompagnarti nella scelta della vostra nuova casa!

Per non perdere nemmeno un aggiornamento sulle nostre nuove soluzioni immobiliari seguici su Facebooke Instagram.

Tecnorete Roseto degli Abruzzi è qui per offrirti il meglio del panorama immobiliare locale.

Siamo specializzati nella gestione delle permute e se stai pensando di vendere il tuo attuale immobile per acquistare la nuova casa, siamo disponibili ad per una consulenza con valutazione gratuita e senza impegno. Inoltre, grazie alla consulenza del credito Kiron (Gruppo Tecnocasa Holding SPA), presso la nostra agenzia puoi accedere a servizi e prodotti come mutui acquisto prima o seconda casa, mutui ristrutturazione e sostituzione del mutuo attuale con uno a condizioni più vantaggiose.

Mostra tutto

Nelle vicinanze

Trasporto pubblico Trasporto pubblico
Trasporto pubblico
3,0 Km
Scuole Scuole
Scuole
400 m
ITT "Vincenzo Cerulli"
2,8 Km
Farmacia Farmacia
Farmacia delle Rose
330 m
Supermercati Supermercati
Margherita
300 m
Supermercati
1,2 Km
Lidl
2,5 Km
Conad
2,5 Km
Bar Bar
Bar - Ristorante La Squolo
530 m
Moliké
2,9 Km
Ristoranti Ristoranti
Pizzeria Walden
340 m
La Squolo
530 m
Ristorante Spinnaker Beach
2,6 Km
Ristorante Lido Serenella
2,8 Km
Mostra tutto

Caratteristiche

Rif.:
61172263
Piano:
1 di 3 con ascensore (Piano medio)
Posti auto:
2
Balconi:
1
Terrazzi:
1
Camere da letto:
2
Mostra tutto
Prezzo Prezzo
€ 270.000
Rata mutuo Rata mutuo
€ 1.273 / mese
Proponi il tuo prezzoProponi il tuo prezzo

Classe Energetica

A4
A4
A4
A4
A4
A4
A4
A4
A4
EP invernale del fabbricato:
EP estiva del fabbricato:
Anno di costruzione:
2026
Riscaldamento:
Autonomo
Tipo impianto:
A pavimento
Tipo alimentazione:
Pannelli

Ti interessa visionare l'immobile?

Fissa un appuntamento  Fissa un appuntamento

Richiedi informazioni

Clicca su Leggi per aprire l'informativa
* Questi campi sono obbligatori

Calcola il tuo mutuo

Semplice e senza impegno
Anticipo

( % )
Mutuo

( % )

pochi semplici passi

inserisci i tuoi dati
Questionario completato
Grazie per aver richiesto un appuntamento senza impegno con un nostro Consulente del Credito e Assicurativo.

Hai inserito correttamente tutti i dati necessari e a breve riceverai una e-mail con un link da convalidare per inviare i tuoi dati.
Affiliato
Icb Roseto Srl
Via Nazionale, 184 64026 Roseto Degli Abruzzi (TE)

Il nostro staff


  • Giuseppe Iela
    Affiliato

  • Monicanunzia Barnabei
    Affiliata

  • Elena Colasante
    Affiliata

  • Luisa Cascini
    Collaboratrice

  • Gianmarco Del Sordo
    Collaboratore

  • Leonardo Falone
    Collaboratore

  • Laura Falasca
    Collaboratrice

  • Francesca Farruggia
    Responsabile

  • Martina Nardi
    Coordinatrice
Via Nazionale, 184 64026 Roseto Degli Abruzzi (TE)
Zona: Roseto degli Abruzzi
Mostra su mappa
Affiliato
Icb Roseto Srl
Via Nazionale, 184 64026 Roseto Degli Abruzzi (TE)

2026 Tecnocasa Franchising S.p.A. - P. IVA 08365160152 - Via Monte Bianco 60/A 20089 Rozzano (MI). Ogni agenzia ha un proprio titolare ed è autonoma. Privacy policy | Policy utilizzo | Cookie policy