Villa a schiera in vendita

Roseto Degli Abruzzi, Via Defense - Cologna Spiaggia
€ 350.000
4 locali 4 locali
209 Mq 209 Mq
3 bagni 3 bagni

Villa a schiera in vendita

Roseto Degli Abruzzi, Via Defense - Cologna Spiaggia

Descrizione annuncio

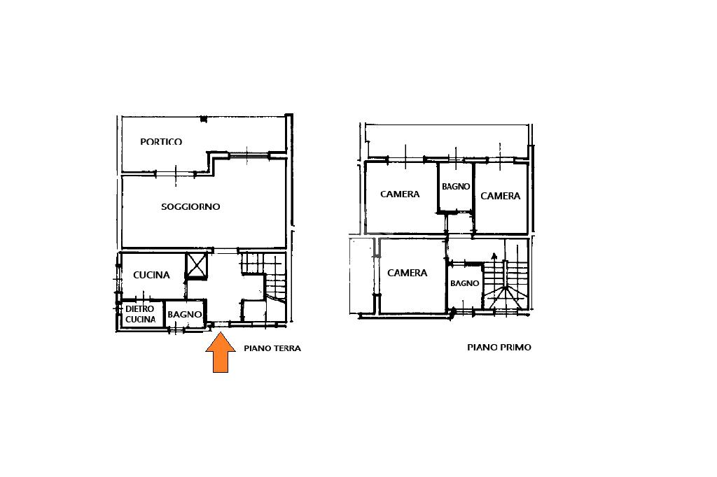
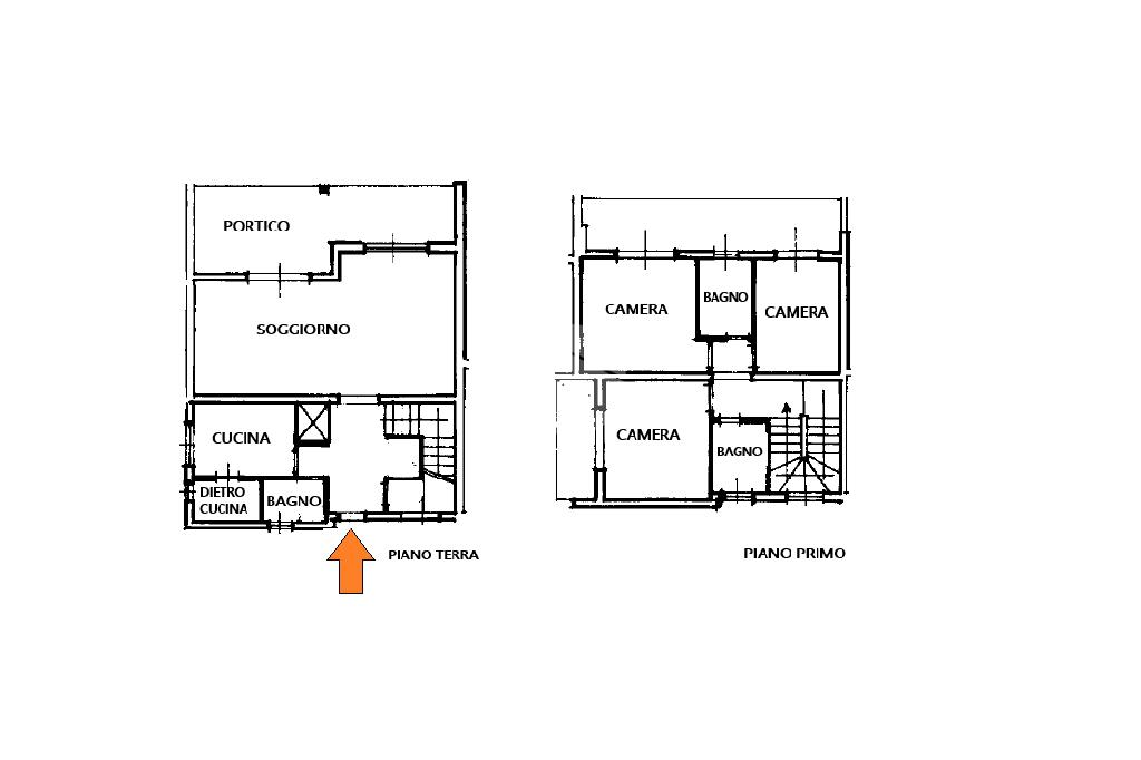
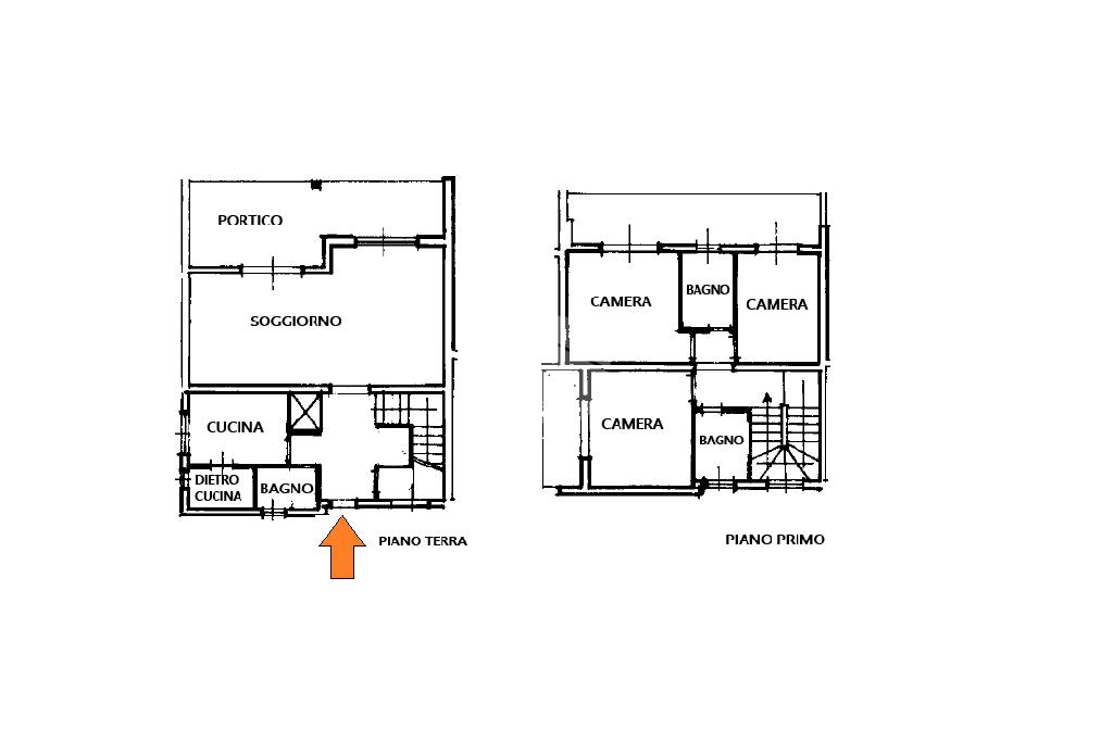
Proponiamo in vendita a Cologna Spiaggia, in posizione tranquilla e riservata, vicina al mare e a tutti i principali servizi, una villa a schiera disposta su due livelli con ampio giardino privato, ideale per famiglie o come casa vacanze.

L'ingresso principale si apre su un comodo disimpegno che introduce alla zona giorno composta da una cucina, un luminoso soggiorno e un bagno finestrato. Una scala interna conduce al piano superiore dove si sviluppa la zona notte: una camera matrimoniale con accesso diretto al balcone, due camerette anch'esse con uscita su balcone, e due bagni finestrati, uno con vasca e l'altro con box doccia.

Completano la proprietà un ampio garage, una spaziosa taverna ideale per momenti conviviali con amici o parenti.

L'immobile si presenta in ottime condizioni ed è perfetto per chi cerca comfort, spazi esterni vivibili e vicinanza al mare.

Contattaci per prenotare una visita al numero 085 201 7691 (Telefono e Whatsapp).

Siamo pronti ad accompagnarti nella scelta della vostra nuova casa!

Per non perdere nemmeno un aggiornamento sulle nostre nuove soluzioni immobiliari seguici su Facebook e Instagram.

Tecnorete Roseto degli Abruzzi è qui per offrirti il meglio del panorama immobiliare locale.

----

Siamo specializzati nella gestione delle permute e se stai pensando di vendere il tuo attuale immobile per acquistare la nuova casa, siamo disponibili ad per una consulenza con valutazione gratuita e senza impegno. Inoltre, grazie alla consulenza del credito Kiron (Gruppo Tecnocasa Holding SPA), presso la nostra agenzia puoi accedere a servizi e prodotti come mutui acquisto prima o seconda casa, mutui ristrutturazione e sostituzione del mutuo attuale con uno a condizioni più vantaggiose.

Mostra tutto

Nelle vicinanze

Trasporto pubblico Trasporto pubblico
stazione di Giulianova
stazione di Giulianova
2,9 Km
Trasporto pubblico
2,2 Km
Scuole Scuole
Scuole
380 m
ITT "Vincenzo Cerulli"
2,0 Km
Farmacia Farmacia
Farmacia delle Rose
560 m
Farmacia Del Leone - Valore Salute
2,8 Km
Ospedali Ospedali
Ospedale Maria SS. dello Splendore
2,4 Km
Ospedali
2,4 Km
Supermercati Supermercati
Margherita
560 m
Supermercati
560 m
Lidl
1,8 Km
Conad
1,9 Km
Negozi Negozi
Globo
2,7 Km
Bar Bar
Bar - Ristorante La Squolo
1,2 Km
Moliké
2,3 Km
Ristoranti Ristoranti
Pizzeria Walden
530 m
La Squolo
1,2 Km
Ristorante Spinnaker Beach
2,0 Km
Ristorante Lido Serenella
2,2 Km
Smile
2,6 Km
Mostra tutto

Caratteristiche

Rif.:
61099495
Piano:
2 di 2 (Piano su più livelli)
Box:
1
Posti auto:
1
Balconi:
2
Terrazzi:
1
Mostra tutto
Prezzo Prezzo
€ 350.000
Rata mutuo Rata mutuo
€ 1.652 / mese
Spese annue Spese annue
€ 0
Proponi il tuo prezzoProponi il tuo prezzo

Classe Energetica

G
G
G
G
G
G
G
G
G
EP invernale del fabbricato:
EP estiva del fabbricato:
Anno di costruzione:
1990
Riscaldamento:
Autonomo
Tipo impianto:
A radiatori
Tipo alimentazione:
Metano

Ti interessa visionare l'immobile?

Fissa un appuntamento  Fissa un appuntamento

Richiedi informazioni

Clicca su Leggi per aprire l'informativa
* Questi campi sono obbligatori

Calcola il tuo mutuo

Semplice e senza impegno
Anticipo

( % )
Mutuo

( % )

pochi semplici passi

inserisci i tuoi dati
Questionario completato
Grazie per aver richiesto un appuntamento senza impegno con un nostro Consulente del Credito e Assicurativo.

Hai inserito correttamente tutti i dati necessari e a breve riceverai una e-mail con un link da convalidare per inviare i tuoi dati.
Affiliato
Icb Roseto Srl
Via Nazionale, 184 64026 Roseto Degli Abruzzi (TE)

Il nostro staff


  • Giuseppe Iela
    Affiliato

  • Monicanunzia Barnabei
    Affiliata

  • Elena Colasante
    Affiliata

  • Luisa Cascini
    Collaboratrice

  • Gianmarco Del Sordo
    Collaboratore

  • Laura Falasca
    Coordinatrice

  • Francesca Farruggia
    Responsabile
Via Nazionale, 184 64026 Roseto Degli Abruzzi (TE)
Zona: Roseto degli Abruzzi
Mostra su mappa
Affiliato
Icb Roseto Srl
Via Nazionale, 184 64026 Roseto Degli Abruzzi (TE)

2025 Tecnocasa Franchising S.p.A. - P. IVA 08365160152 - Via Monte Bianco 60/A 20089 Rozzano (MI). Ogni agenzia ha un proprio titolare ed è autonoma. Privacy policy | Policy utilizzo | Cookie policy